Архив журнала Моделист-Конструктор

|
ДАЧА-ПУТЕШЕСТВЕННИЦА«М-К» не раз публиковал описания автомобильных прицепов. Да и промышленность их выпускает, например, «Скиф». Однако я решил построить его на, свой вкус. И с тех пор уже не один год дача-путешественница надежно служит моей семье. Все ее узлы оказались достаточно прочными и работоспособными, а салон обеспечивает комфорт для четырех человек.
Прицеп я назвал его «Лада-В» разборный и устанавливается на стальную раму, основной несущий элемент. Для соединения с автомобилем служит треугольное дышло, скрепленное с рамой двумя болтами М20Х85 и регулируемой тягой. Последняя позволяет вставлять раму «Лады-В» горизонтально или приподнимать ее заднюю часть при движении по неровной дороге.
К раме болтами М6Х12 фиксируется основание кузова. В его передней части образована герметичная секция для двух пятилитровых газовых баллонов. Доступ к ним через сиденье (крышку секции).
К основанию болтами М6Х12 крепятся передняя и задняя стенки с окнами. К первой приделаны малые боковые панели, ко второй большие.
Основание кузова цельноклепаное, с плоским днищем и проемами для колесных ниш. К нему прикреплены поперечные и продольные перегородки, усиленные алюминиевыми уголками 30X18 мм и соединенные заклепочными швами с наружными панелями.
Обводы передней и задней частей кузова выполнены из листового дюралюминия, подкрепленного изогнутыми уголками. Сзади оформлены выколотки для подфарников и государственного номерного знака.
Окна в прицепе автомобильные, со стандартными рамками, стеклами и уплотнителями.
Конструкция крыши. Продольные, задние и Соковые шпангоуты собираются так же, как и основание. Обшивка из листового дюралюминия, склепанного с уголками. Сначала собиралась обвязка, на которой фиксировались на заклепках продольные и поперечные шпангоуты. Углы обвязки усилены жесткими накладками. Особенно тщательно следует выполнять раскрой обшивки в углах крыши: здесь прямолинейные элементы обвязки соединены со шпангоутами различной кривизны. После крепления алюминиевого листа к каркасу никакой дополнительной выштамповки углов не потребовалось.
Для сброса воды с крыши предусмотрены желобки по контуру. В середине крыши оставлен проем для вентиляционного люка. Его крышка поднимается ка четырех качалках.
Все панели кузова заполнены листами пенопласта толщиной 18 мм. Их оклеивали бумагой, а затек светло-серым пластиком. Перегородки под диванами, кухонный блок, подвесная полка и фанерные перегородки отделаны синтетической пленкой под древесину.
Спинки и сиденья диванов выполнены из семимиллиметровой фанеры и листового поролона толщиной 40 мм. Сверху они обтянуты декоративной тканью. Салон оборудован плафонами освещения с питанием от аккумулятора автомобиле. Для пользования грузовыми отсеками, расположенными под боковыми диванами, стол в салоне можно поднять на шарнирах, которыми он крепится к задней стенке. Подставка стола при этом укладывается в нишу на его нижней плоскости.
Салон прицепа разделен на две функциональные зоны: отдыха и бытовую. Первая оборудована столом, на ночлег он снимается и укладывается между боковыми диванами. Получается своеобразная тахта. Впереди, в бытовой зоне, может быть оборудовано еще одно спальное место для ребенка.
Ограниченная площадь салона продиктовала размещение кухонного блока компактного, но в то же время удобного. Удалось разместить даже мойку (полиэтиленовая емкость 450X450X150 мм).
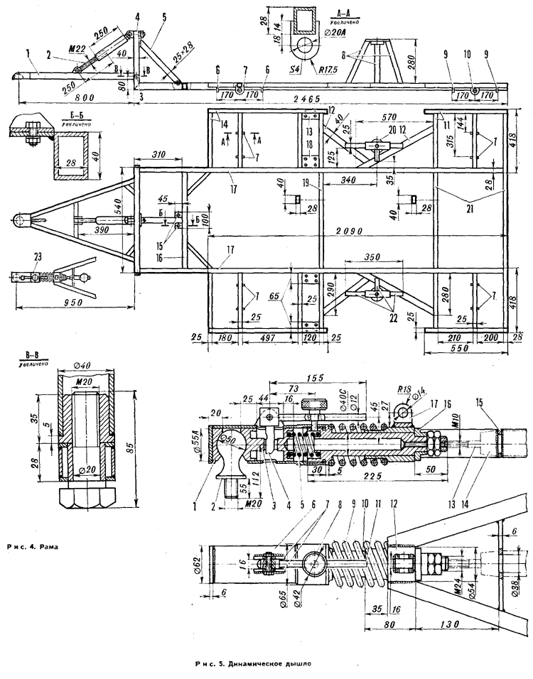
Основной несущий элемент прицепа рама сварена в стапеле со струбцинами для предотвращения остаточных тепловых деформаций.
Главная часть ее силовой прямоугольник из стальных труб сечением 40x28 мм: двух лонжеронов и четырех поперечин. Спереди к нему приварен П-образный передок, к которому привинчены дышло, регулируемая тяга и передний подкос, а с боков элементы передней и задней обвязки (продольные и поперечные трубы 28Х-5 мм), предназначенные для крепления стояночных домкратов. Между обвязками на задних подкосах из стальных труб сечением 40X28 мм возвышаются треноги (трубы 28X25 мм) с кронштейнами (проушинами) амортизаторов и опорными кольцами под пружины подвески колес.
Для соединения прицепа с автомобилем вначале я использовал механизм сцепки «Скифа», но затем заменил его, на мой взгляд, более совершенным, самодельным, позволяющим создавать тормозное усилие в колесах, пропорциональное весу прицепа и скорости его движения. Такое дышло представляет собой подвижный подпружиненный узел. Спереди у него корпус с передним неподвижным и задним подвижным упорами со сферической поверхностью под шаровой шкворень сцепки. Задний упор поджимается внутренней пружиной и удерживается крюком, застопоренным на корпусе винтом. С этим же корпусом соединен и цилиндрический ползун, на одном конце которого внешняя резьба М60Х2, на другом внутренняя М10. Ползун перемещается внутри корпуса демпфера, поджатого внешней пружиной. Во внутреннюю резьбу ползуна ввинчивается шток, соединяющийся с главным тормозным цилиндром от автомобиля «Москвич», установленным на планке дышла.
Сила торможения колес прицепа зависит от его веса и скорости передвижения. Чем они больше, тем сильнее сжимается демпфирующая пружина, а шток давит на цилиндр. Отсюда и тормозное усилие.
Колеса от мотоколяски СЗА. От нее же и ободы, соединенные со ступицей стальными дисками 0 230 мм. Подвеска колес маятниковая, с амортизаторами передней подвески от коляски СЗА и пружинами от автомобиля ЗАЗ-968. Колесо на полуоси вращается на конце V-образного маятника, сваренного из двух подкосов, которые, в свою очередь, приварены к траверсе, подвешенной в подшипниках скольжения к опорным площадкам рамы прицепа.
На большом подкосе, вблизи гильзы полуоси, имеются опорное кольцо пружины подвески и кронштейн крепления амортизатора. Ответные узлы на раме прицепа, на треногах.
На стоянке прицеп может быть отсоединен от автомобиля. Чтобы придать ему устойчивость и горизонтальное положение, предусмотрены домкраты. Их четыре по два с каждой стороны. Из маршевого положения в стояночное они переводятся специальным ключом, похожим на заводную рукоятку. На конце ключа сделан шестигранный торец, который продевается в проушину подъема домкрата и вставляется в головку его ходового винта. Вращением против часовой стрелки лапу опускают до упора в грунт.
Снаружи «Лада-В» окрашена следующим образом: верх светлый, низ темный под цвет машины. Днище прицепа оклеено листом ДВП толщиной 5 мм и покрыто эмалью.
«Лада-В» оборудована электроприборами от автомобиля «Жигули» ВАЗ-2101 (задние фонари). На передней стенке установлены два треугольных катафота белого цвета, на задней красного.
Прицеп устойчив в движении и маневрировании, достаточно обтекаем аэродинамически. Об этом можно судить по расходу топлива не более 10 л на 100 км пути. Транспортировать прицеп-дачу можно и в упакованном виде, если он в данный момент не предназначен для жилья. Время на упаковку и подготовку к движению в таком виде не превышает двух часов.
А. ВАСИЛЬЕВ, г. Витебск
ТЕХНИЧЕСКАЯ ХАРАКТЕРИСТИКА «ЛАДЫ-В»
Длина с дышлом, мм 3850
|

|
Он не только красив внешне, но достаточно комфортабелен внутри: есть тут и «столовая», и «спальня», и «кухням. В то же время конструкция прицепа доступна для самостоятельного изготовления благодаря тому, что он, словно карточный домик, составлен из отдельных панелей, собранных на раме-основании.
Вверху основные элементы прицепа-дачи: 1 дышло, 2 амортизатор, 3 рама, 4 торцевые панели, 5 герметичная секция, 6 основание кузова, 7 основание дивана, 8 передние боковины, 9 крышевая панель, 10 задние боковины, 11 вентиляционный люк.
|


|
Рис. 2. Кузов: 1 рамка заднего окна, 2 каркас задней боковой панели,. 3 каркас передней боковой панели, 4 основание кузова, 5 каркас задней стенки, 6 каркас передней стенки, 7, 9 выколотки под подфарники, 8 выколотка под номерной знак, 10 колесная ниша, 11 гермосекция для газовых баллонов, 12 каркас крыши, 13 стойка задней стенки, 14 резиновый уплотнитель, 15 фанерная перегородка, 16 дверь, 17 карниз, 18 остекление двери, 19 порожек, 20 передняя стенка.
Рис. 3. Крыша: 1 обвязка каркаса, 2 поперечные шпангоуты, 3 продольные шпангоуты, 4 люк, 5 резиновый уплотнитель, 6 окантовка люка, 7 кронштейн, 8 качалка, 9 накладка, 10 обшивка, 11 водосливной желобок.
|

|
Рис. 4. Рама: 1 дышло, 2 тяга, 3 болт М20 крепления дышла (2 шт.), 4 П-образный передок, 5 передний подкос, 6 проушины подкосов передних домкратов (4 шт.). 7 петли передних и задних домкратов (8 шт.), 8 верхний кронштейн амортизатора, 9 проушины подкосов задних домкратов (4 шт.), 10 проушина подъема домкрата (4 шт.), 11 элементы задней обвязки, 12 задние подкосы, 13, 18 опорные площадки подвески колес, 14 элементы передней обвязки, 15 болты крепления переднего подкоса, 16 передняя поперечина, 17 лонжероны, 19 средняя поперечина, 20 опорное кольцо пружины подвески, 21 задние поперечины, 22 стойки кольца, 23 динамическое дышло.
Рис. 5. Динамическое дышло: 1 передний упор, 2 шаровой шкворень, 3 задний упор, 4 крюк, 5 внутренняя пружина, 6 корпус сцепки, 7 проушины рычага. 8 стопорный винт, 9 внешняя пружина (демпферная), 10 ползун, 11 рычаг, 12 корпус демпфера, 13 шток, 14 тормозной цилиндр, 15 планка крепления цилиндра, 16 кольцо. 17 проушины регулируемой тяги.
|

|
Рис. 6. Подвеска колеса (ступица и диск на виде сбоку не показаны): 1 уголок, 2 малый подкос, 3 большой подкос, 4 траверса, 5 внутренний стакан подшипника скольжения, 6 войлочный сальник, 7 внешний стакан. 8 бронзовая втулка. 9 текстолитовая шайба, 10 гильза, 11 полуось, 12 ступица, 13 втулка, 14 диск колеса, 15 обод, 16 кронштейн крепления амортизатора, 17 опорное кольцо пружины подвески. |

|
Рис. 7. Стояночный домкрат: 1 лапа домкрата, 2, 15 подкосы, 3, 4 элементы обвязки, 5 ходовая гайка, 6 головка ходового винта, 7, 10 бронзовые втулки, 8 петли домкратов, 9 ходовой винт, 11 шайба, 12 лонжерон, 13, 14 проушины подкосов, 16 заклепки, 17 проушина подъема домкрата.
Чертежи для печати
|